Courtesy of RE/MAX Saskatoon

1913 20th Street W, House for sale in Pleasant Hill Saskatoon , Saskatchewan , S7M 1A3

 MLS® # SK020987

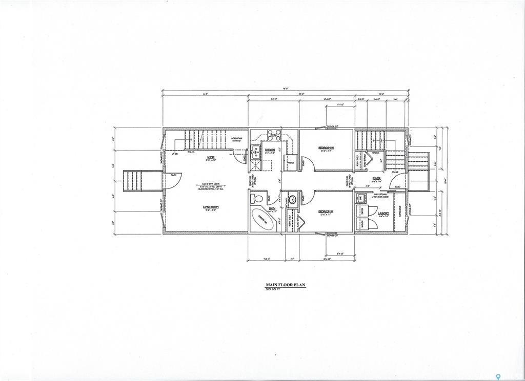
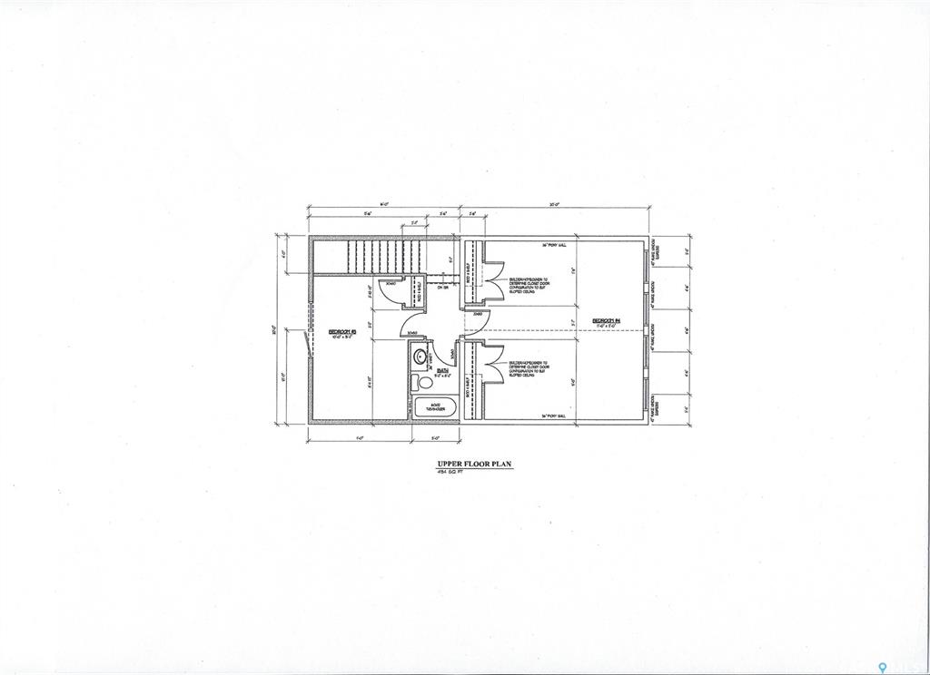
3 bedrooms

2 bathrooms

920 sqft

Sign up to View

Days on Market

Wow! Ready to swing a hammer? This unique opportunity awaits. Most of the exterior and interior framing is done, Gas line in house , as well as Electrical rough-in and Water line. This unique opportunity in a rapidly developing part of Pleasant Hill offers up 6 total Bedrooms if developed with proposed plans. Loft design with bedrooms upstairs and living room/kitchen on main. Basement offers separate suite with 2 bedrooms in full height basement. Start construction before the snow hits and build your Dre...

Read More

Essential Information

  • MLS® #
    SK020987
  • Year Built
    2023
  • Property Type
    Residential
  • Property Subtype
    Detached
  • Property Style
    One ½
  • MLS® #
    SK020987
  • Year Built
    2023
  • Property Type
    Residential
  • Property Subtype
    Detached
  • Property Style
    One ½
  • MLS® #
    SK020987
  • Year Built
    2023
  • Property Type
    Residential
  • Property Subtype
    Detached
  • Property Style
    One ½

Community Information

  • Neighbourhood
    Pleasant Hill
  • Postal Code
    S7M 1A3
  • Neighbourhood
    Pleasant Hill
  • Postal Code
    S7M 1A3
  • Neighbourhood
    Pleasant Hill
  • Postal Code
    S7M 1A3

Interior

  • Heating
    Natural Gas
  • Basement
    Full Basement
  • Basement Walls
    Preserved Wood
  • Heating
    Natural Gas
  • Basement
    Full Basement
  • Basement Walls
    Preserved Wood
  • Heating
    Natural Gas
  • Basement
    Full Basement
  • Basement Walls
    Preserved Wood

Exterior

  • Roof
    Other
  • Roof
    Other
  • Roof
    Other

Additional Details

  • Taxes
    973
  • Ownership Title
    Freehold
  • Taxes
    973
  • Ownership Title
    Freehold
  • Taxes
    973
  • Ownership Title
    Freehold

$99,900

1913 20th Street W

Schedule Tour
Contact Agent

$455/month
Est. Monthly Payment
$
$
%
Learn More