Courtesy of Realty Hub Brokerage

2423 Strathmore Place E, House for sale in University Park East Regina , Saskatchewan , S4V 0Z1

 MLS® # SK029229

3 bedrooms

3 bathrooms

2,310 sqft

Sign up to View

Days on Market

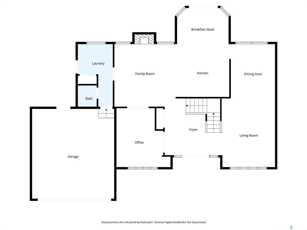
Welcome to this extensively remodeled 3-bedroom, 2-office, 3-bath home on almost a ¼ acre lot in University Park East. Located on a quiet cul-de-sac, this home combines modern luxury and functionality, offering plenty of space for the whole family. Upon entry, a grand foyer and hardwood floors welcome you. Natural light fills the formal dining room, kitchen, and family areas. The living room features vaulted beam ceilings, seamlessly connecting to the dining area—ideal for large gatherings. The remodeled...

Read More

Essential Information

  • MLS® #
    SK029229
  • Year Built
    1981
  • Property Type
    Residential
  • Property Subtype
    Detached
  • Property Style
    2 Storey Split
  • MLS® #
    SK029229
  • Year Built
    1981
  • Property Type
    Residential
  • Property Subtype
    Detached
  • Property Style
    2 Storey Split
  • MLS® #
    SK029229
  • Year Built
    1981
  • Property Type
    Residential
  • Property Subtype
    Detached
  • Property Style
    2 Storey Split

Community Information

  • Neighbourhood
    University Park East
  • Postal Code
    S4V 0Z1
  • Neighbourhood
    University Park East
  • Postal Code
    S4V 0Z1
  • Neighbourhood
    University Park East
  • Postal Code
    S4V 0Z1

Services & Amenities

  • Parking
    2 Car Attached
  • Parking
    2 Car Attached
  • Parking
    2 Car Attached

Interior

  • Heating
    Forced Air
    Natural Gas
  • Fireplaces
    1
  • Fireplace Type
    Gas
  • Water Heater
    Rented
  • Water Heater Type
    Gas
  • Water Softener
    Not Included
  • Basement
    Full Basement
    Unfinished
  • Basement Walls
    Concrete
  • Heating
    Forced Air, Natural Gas
  • Fireplaces
    1
  • Fireplace Type
    Gas
  • Water Heater
    Rented
  • Water Heater Type
    Gas
  • Water Softener
    Not Included
  • Basement
    Full Basement, Unfinished
  • Basement Walls
    Concrete
  • Heating
    Forced Air
    Natural Gas
  • Fireplaces
    1
  • Fireplace Type
    Gas
  • Water Heater
    Rented
  • Water Heater Type
    Gas
  • Water Softener
    Not Included
  • Basement
    Full Basement
    Unfinished
  • Basement Walls
    Concrete

Exterior

  • Lot/Exterior Features
    Deck
    Fenced
    Garden Area
    Lawn Back
    Lawn Front
    Trees/Shrubs
  • Roof
    Asphalt Shingles
  • Lot/Exterior Features
    Deck, Fenced, Garden Area, Lawn Back, Lawn Front, Trees/Shrubs
  • Roof
    Asphalt Shingles
  • Lot/Exterior Features
    Deck
    Fenced
    Garden Area
    Lawn Back
    Lawn Front
    Trees/Shrubs
  • Roof
    Asphalt Shingles

Additional Details

  • Taxes
    6580
  • Ownership Title
    Freehold
  • Included Equipment
    Central Vac Attached
    Central Vac Attachments
    Dishwasher Built In
    Dryer
    Freezer
    Fridge
    Garage Door Opnr/Control(S)
    Microwave
    Oven Built In
    Shed(s)
    Stove
    Washer
    Window Treatment
  • Features
    Air Conditioner (Central)
    Alarm Sys Owned
    Floating Shelves
    T.V. Mounts
  • Taxes
    6580
  • Ownership Title
    Freehold
  • Included Equipment
    Central Vac Attached, Central Vac Attachments, Dishwasher Built In, Dryer, Freezer, Fridge, Garage Door Opnr/Control(S), Microwave, Oven Built In, Shed(s), Stove, Washer, Window Treatment
  • Features
    Air Conditioner (Central), Alarm Sys Owned, Floating Shelves, T.V. Mounts
  • Taxes
    6580
  • Ownership Title
    Freehold
  • Included Equipment
    Central Vac Attached
    Central Vac Attachments
    Dishwasher Built In
    Dryer
    Freezer
    Fridge
    Garage Door Opnr/Control(S)
    Microwave
    Oven Built In
    Shed(s)
    Stove
    Washer
    Window Treatment
  • Features
    Air Conditioner (Central)
    Alarm Sys Owned
    Floating Shelves
    T.V. Mounts

$659,900

2423 Strathmore Place E

Schedule Tour
Contact Agent

$3006/month
Est. Monthly Payment
$
$
%
Learn More