Courtesy of RE/MAX Saskatoon

28 Malta Crescent, House for sale in Massey Place Saskatoon , Saskatchewan , S7L 3W1

 MLS® # SK028982

4 bedrooms

4 bathrooms

1,240 sqft

Sign up to View

Days on Market

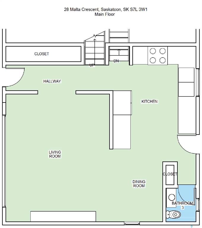
Welcome to 28 Malta Crescent, a four level split home, on a spacious 8,394 sqft corner lot, where thoughtful design, quality craftsmanship, and modern elegance come together in a beautifully renovated, move-in ready home. This stunning top-to-bottom transformation features high-end finishes throughout, beginning with a chef-inspired kitchen designed to impress. Enjoy brand new custom cabinetry with elegant gold hardware, under-cabinet lighting, premium stainless-steel appliances, a Blanco sink, designer bac...

Read More

Essential Information

  • MLS® #
    SK028982
  • Year Built
    1972
  • Property Type
    Residential
  • Property Subtype
    Detached
  • Property Style
    Split (4)
  • MLS® #
    SK028982
  • Year Built
    1972
  • Property Type
    Residential
  • Property Subtype
    Detached
  • Property Style
    Split (4)
  • MLS® #
    SK028982
  • Year Built
    1972
  • Property Type
    Residential
  • Property Subtype
    Detached
  • Property Style
    Split (4)

Community Information

  • Neighbourhood
    Massey Place
  • Postal Code
    S7L 3W1
  • Neighbourhood
    Massey Place
  • Postal Code
    S7L 3W1
  • Neighbourhood
    Massey Place
  • Postal Code
    S7L 3W1

Interior

  • Heating
    Forced Air
    Natural Gas
  • Fireplaces
    1
  • Fireplace Type
    Electric
  • Water Heater Type
    Gas
  • Basement
    Full Basement
    Fully Finished
  • Basement Walls
    Concrete
  • Heating
    Forced Air, Natural Gas
  • Fireplaces
    1
  • Fireplace Type
    Electric
  • Water Heater Type
    Gas
  • Basement
    Full Basement, Fully Finished
  • Basement Walls
    Concrete
  • Heating
    Forced Air
    Natural Gas
  • Fireplaces
    1
  • Fireplace Type
    Electric
  • Water Heater Type
    Gas
  • Basement
    Full Basement
    Fully Finished
  • Basement Walls
    Concrete

Exterior

  • Lot/Exterior Features
    Deck
    Fenced
    Lawn Back
    Lawn Front
    Trees/Shrubs
  • Roof
    Asphalt Shingles
  • Lot/Exterior Features
    Deck, Fenced, Lawn Back, Lawn Front, Trees/Shrubs
  • Roof
    Asphalt Shingles
  • Lot/Exterior Features
    Deck
    Fenced
    Lawn Back
    Lawn Front
    Trees/Shrubs
  • Roof
    Asphalt Shingles

Additional Details

  • Taxes
    3316
  • Ownership Title
    Freehold
  • Included Equipment
    Central Vac Attached
    Central Vac Attachments
    Dishwasher Built In
    Dryer
    Freezer
    Fridge
    Garage Door Opnr/Control(S)
    Garburator
    Hood Fan
    Stove
    Vac Power Nozzle
    Washer
    Window Treatment
  • Features
    Air Conditioner (Central)
    Sump Pump
  • Taxes
    3316
  • Ownership Title
    Freehold
  • Included Equipment
    Central Vac Attached, Central Vac Attachments, Dishwasher Built In, Dryer, Freezer, Fridge, Garage Door Opnr/Control(S), Garburator, Hood Fan, Stove, Vac Power Nozzle, Washer, Window Treatment
  • Features
    Air Conditioner (Central), Sump Pump
  • Taxes
    3316
  • Ownership Title
    Freehold
  • Included Equipment
    Central Vac Attached
    Central Vac Attachments
    Dishwasher Built In
    Dryer
    Freezer
    Fridge
    Garage Door Opnr/Control(S)
    Garburator
    Hood Fan
    Stove
    Vac Power Nozzle
    Washer
    Window Treatment
  • Features
    Air Conditioner (Central)
    Sump Pump

$599,900

28 Malta Crescent

Schedule Tour
Contact Agent

$2732/month
Est. Monthly Payment
$
$
%
Learn More