Courtesy of RE/MAX Saskatoon

319 Flynn Manor, House for sale in Rosewood Saskatoon , Saskatchewan , S7V 0Z4

 MLS® # SK027545

3 bedrooms

3 bathrooms

2,490 sqft

Sign up to View

Days on Market

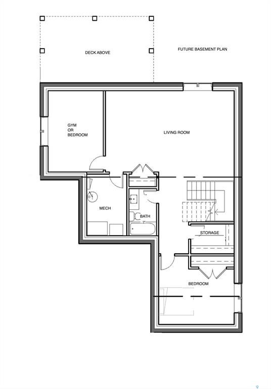
Please note that images are concepts only, as this home is not built yet. Lexis Homes is re-creating their popular Eclipse floor plan on this extra-wide walkout lot in Rosewood. All rooms are generously sized in this 2490 sq ft floor plan. 12-foot-high ceilings in the living room. Designer kitchen with walk through pantry. Wet bar located beside the dining room. Main floor office. Functional mudroom that looks fantastic. Large rear deck that is partially covered. The 2nd floor features a bonus room and 3 b...

Read More

Essential Information

  • MLS® #
    SK027545
  • Year Built
    2026
  • Property Type
    Residential
  • Property Subtype
    Detached
  • Property Style
    2 Storey
  • MLS® #
    SK027545
  • Year Built
    2026
  • Property Type
    Residential
  • Property Subtype
    Detached
  • Property Style
    2 Storey
  • MLS® #
    SK027545
  • Year Built
    2026
  • Property Type
    Residential
  • Property Subtype
    Detached
  • Property Style
    2 Storey

Community Information

  • Neighbourhood
    Rosewood
  • Postal Code
    S7V 0Z4
  • Neighbourhood
    Rosewood
  • Postal Code
    S7V 0Z4
  • Neighbourhood
    Rosewood
  • Postal Code
    S7V 0Z4

Interior

  • Heating
    Forced Air
  • Furnace
    Furnace Owned
  • Fireplaces
    1
  • Fireplace Type
    Gas
  • Water Heater
    Included
  • Water Heater Type
    Gas
  • Water Softener
    Not Included
  • Basement
    Full Basement
    Partially Finished
  • Basement Walls
    Concrete
  • Heating
    Forced Air
  • Furnace
    Furnace Owned
  • Fireplaces
    1
  • Fireplace Type
    Gas
  • Water Heater
    Included
  • Water Heater Type
    Gas
  • Water Softener
    Not Included
  • Basement
    Full Basement, Partially Finished
  • Basement Walls
    Concrete
  • Heating
    Forced Air
  • Furnace
    Furnace Owned
  • Fireplaces
    1
  • Fireplace Type
    Gas
  • Water Heater
    Included
  • Water Heater Type
    Gas
  • Water Softener
    Not Included
  • Basement
    Full Basement
    Partially Finished
  • Basement Walls
    Concrete

Exterior

  • Lot/Exterior Features
    Deck
    Partially Fenced
  • Roof
    Asphalt Shingles
  • Construction
    Wood Frame
  • Lot/Exterior Features
    Deck, Partially Fenced
  • Roof
    Asphalt Shingles
  • Construction
    Wood Frame
  • Lot/Exterior Features
    Deck
    Partially Fenced
  • Roof
    Asphalt Shingles
  • Construction
    Wood Frame

Additional Details

  • Ownership Title
    Freehold
  • Included Equipment
    Dishwasher Built In
    Dryer
    Fridge
    Garage Door Opnr/Control(S)
    Hood Fan
    Microwave
    Oven Built In
    Stove
    Washer
  • Features
    Air Conditioner (Central)
    Air Exchanger
    Heat Recovery Unit
    Humidifier
    Gas Bbq Hookup
    Sump Pump
    Wet Bar
  • Ownership Title
    Freehold
  • Included Equipment
    Dishwasher Built In, Dryer, Fridge, Garage Door Opnr/Control(S), Hood Fan, Microwave, Oven Built In, Stove, Washer
  • Features
    Air Conditioner (Central), Air Exchanger, Heat Recovery Unit, Humidifier, Gas Bbq Hookup, Sump Pump, Wet Bar
  • Ownership Title
    Freehold
  • Included Equipment
    Dishwasher Built In
    Dryer
    Fridge
    Garage Door Opnr/Control(S)
    Hood Fan
    Microwave
    Oven Built In
    Stove
    Washer
  • Features
    Air Conditioner (Central)
    Air Exchanger
    Heat Recovery Unit
    Humidifier
    Gas Bbq Hookup
    Sump Pump
    Wet Bar

$1,295,000

319 Flynn Manor

Schedule Tour
Contact Agent

$5898/month
Est. Monthly Payment
$
$
%
Learn More